18/10/2024
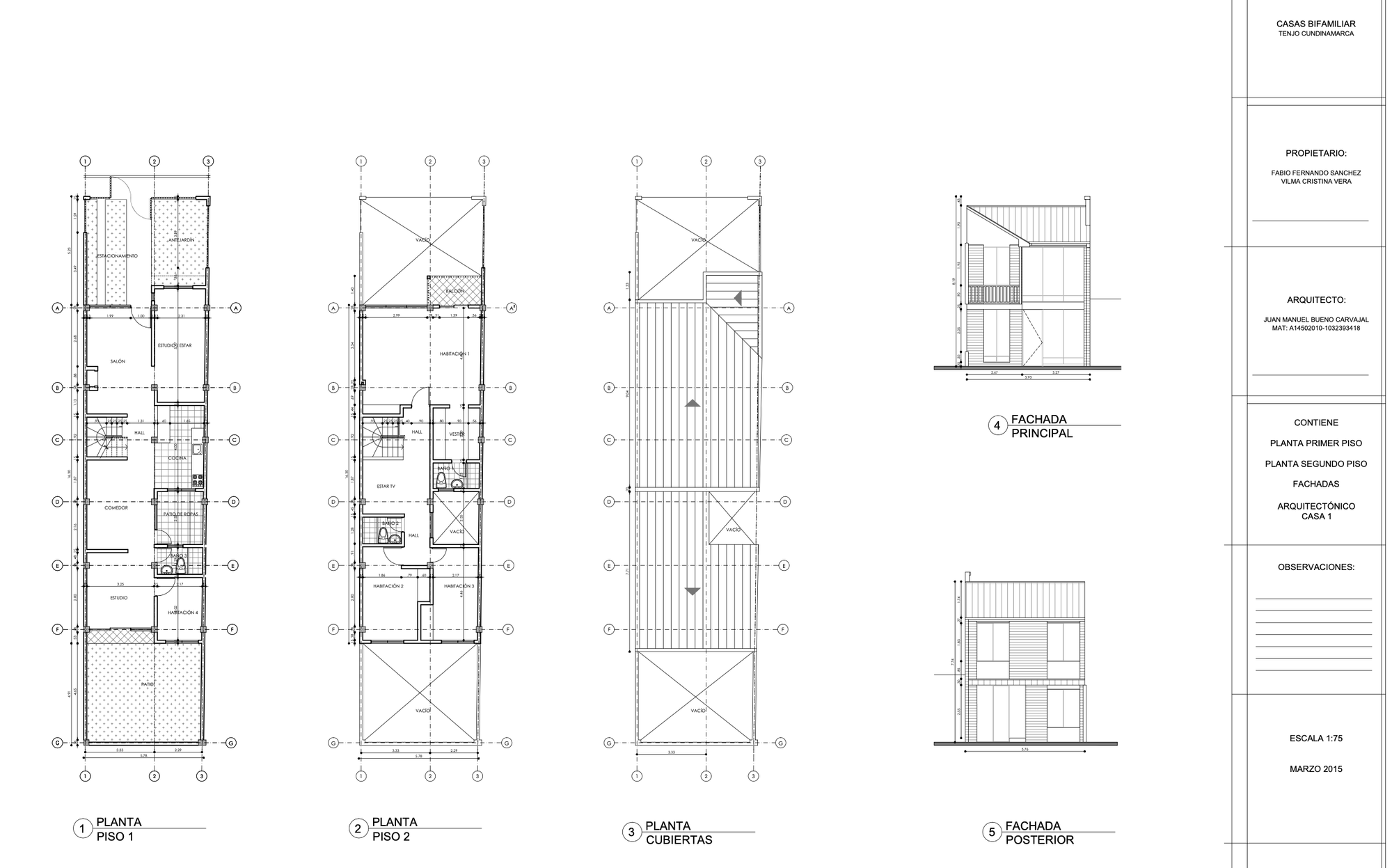
Proyecto residencial. Cliente: privado. Levantamiento, dibujo de planos (plantas, fachadas, secciones, técnicos, propiedad horizontal) para tramitación de escrituras y habilitación de servicios públicos de un proyecto residencial compuesto por dos casas bifamiliares. Los clientes requerían un trabajo de reconocimiento y elaboración de planimetría técnica de la obra en fase de acabados para las tramitaciones correspondientes, previas a la venta de las unidades residenciales. Adicionalmente, se realizó asesoría de acabados, paisajismo y diseño de portafolio de venta.




